Accueil
Habitations
Extensions/transformations
Logements groupés
Etudes
Contact
Menu
Accueil
Habitations
Extensions/transformations
Logements groupés
Etudes
Contact
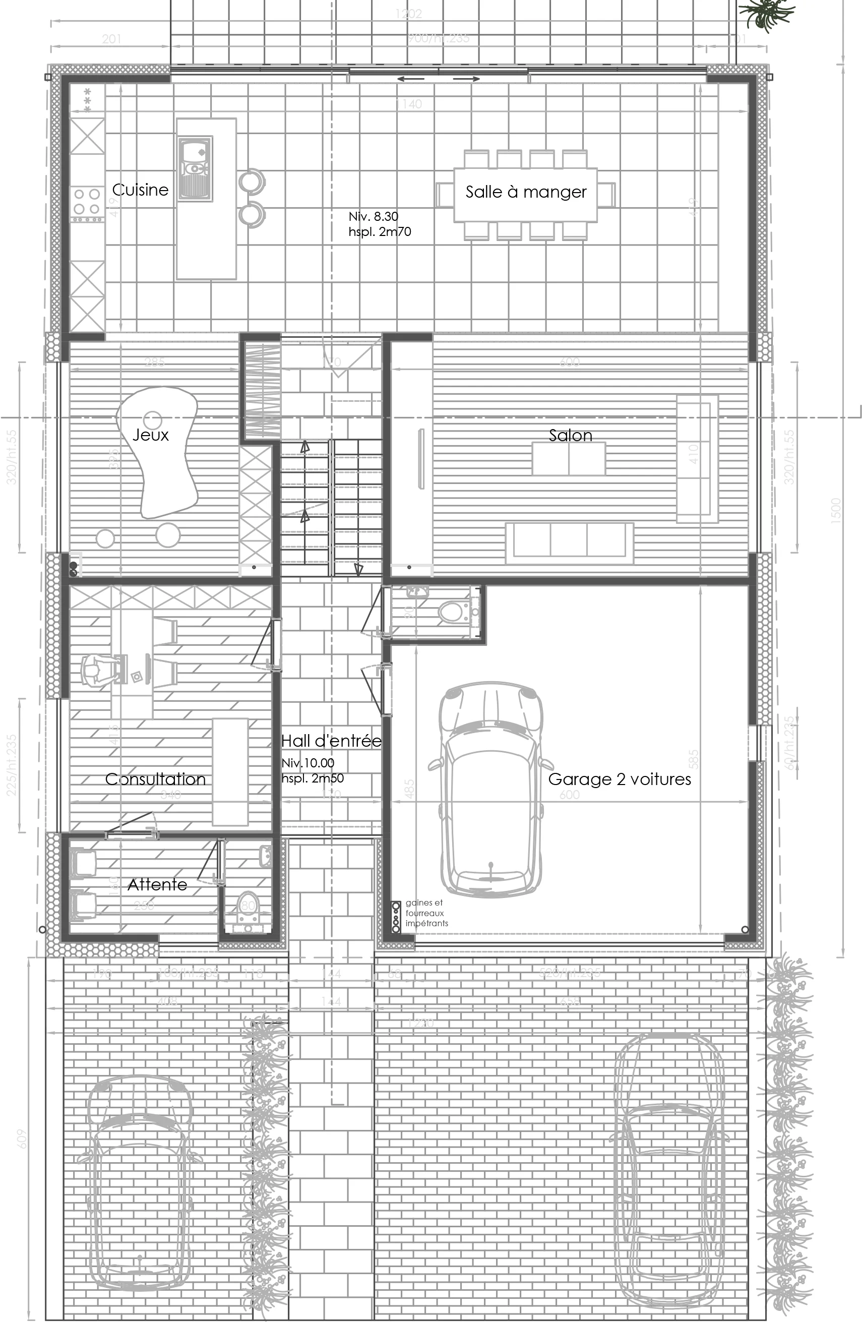
Construction d'une habitation unifamiliale / Strépy-Bracquegnies.