Accueil
Habitations
Extensions/transformations
Logements groupés
Etudes
Contact
Menu
Accueil
Habitations
Extensions/transformations
Logements groupés
Etudes
Contact
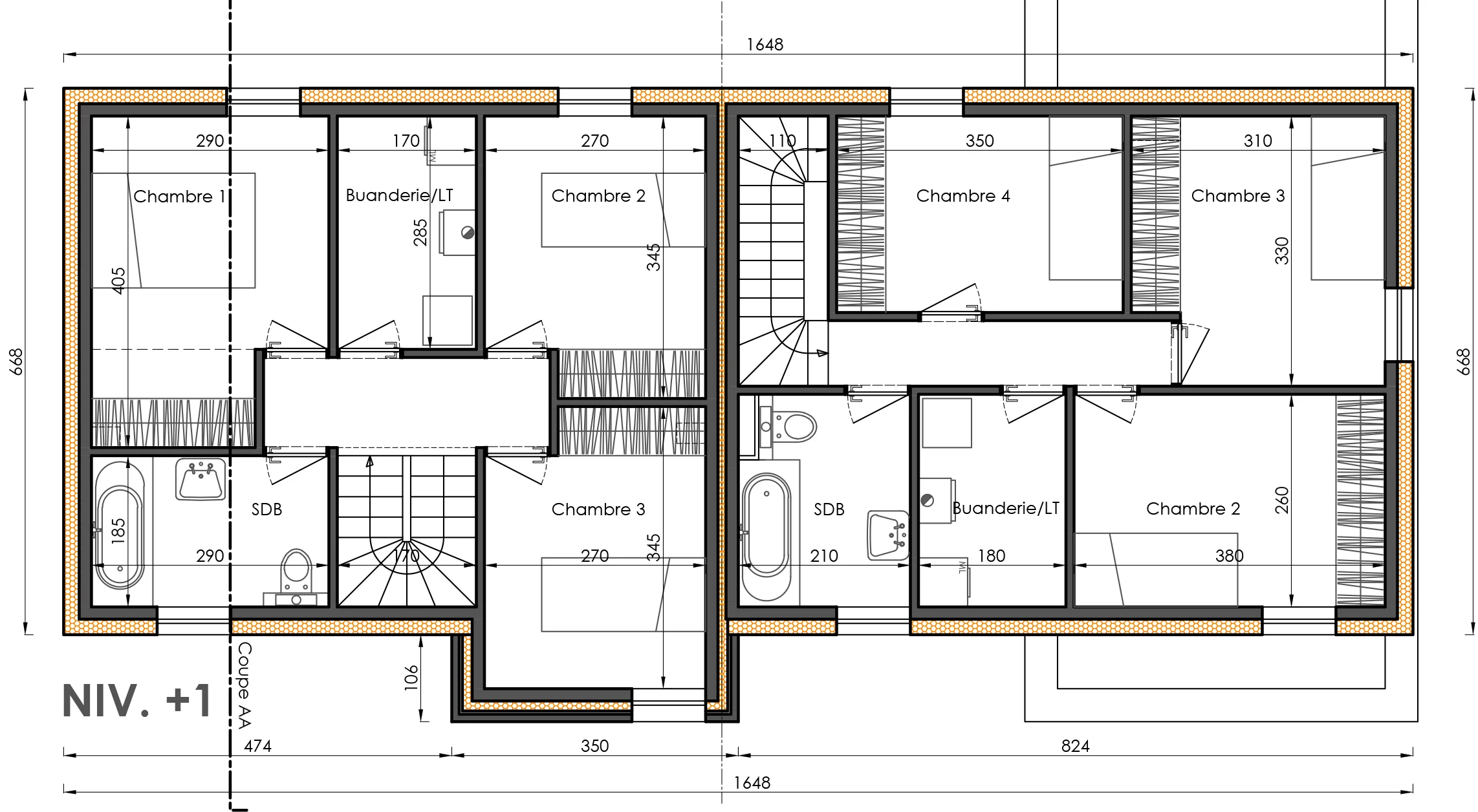
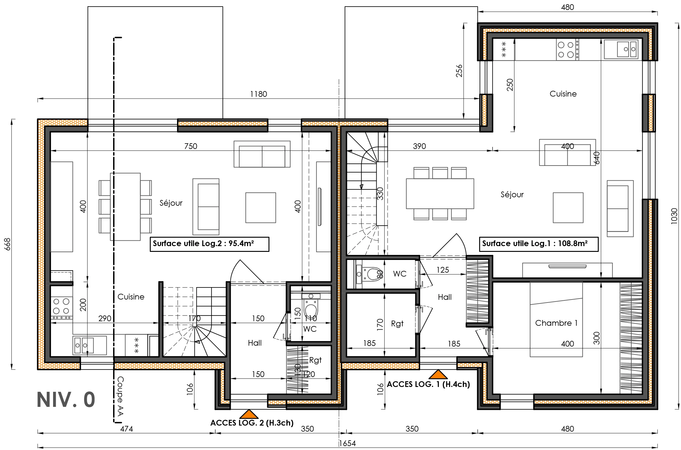
Concours / Construction de 2 logements / Thuin